Rerrin, Bere Island, Beara, Co. Cork
€80,000
- Selling Type:By Private Treaty
About this property
Description
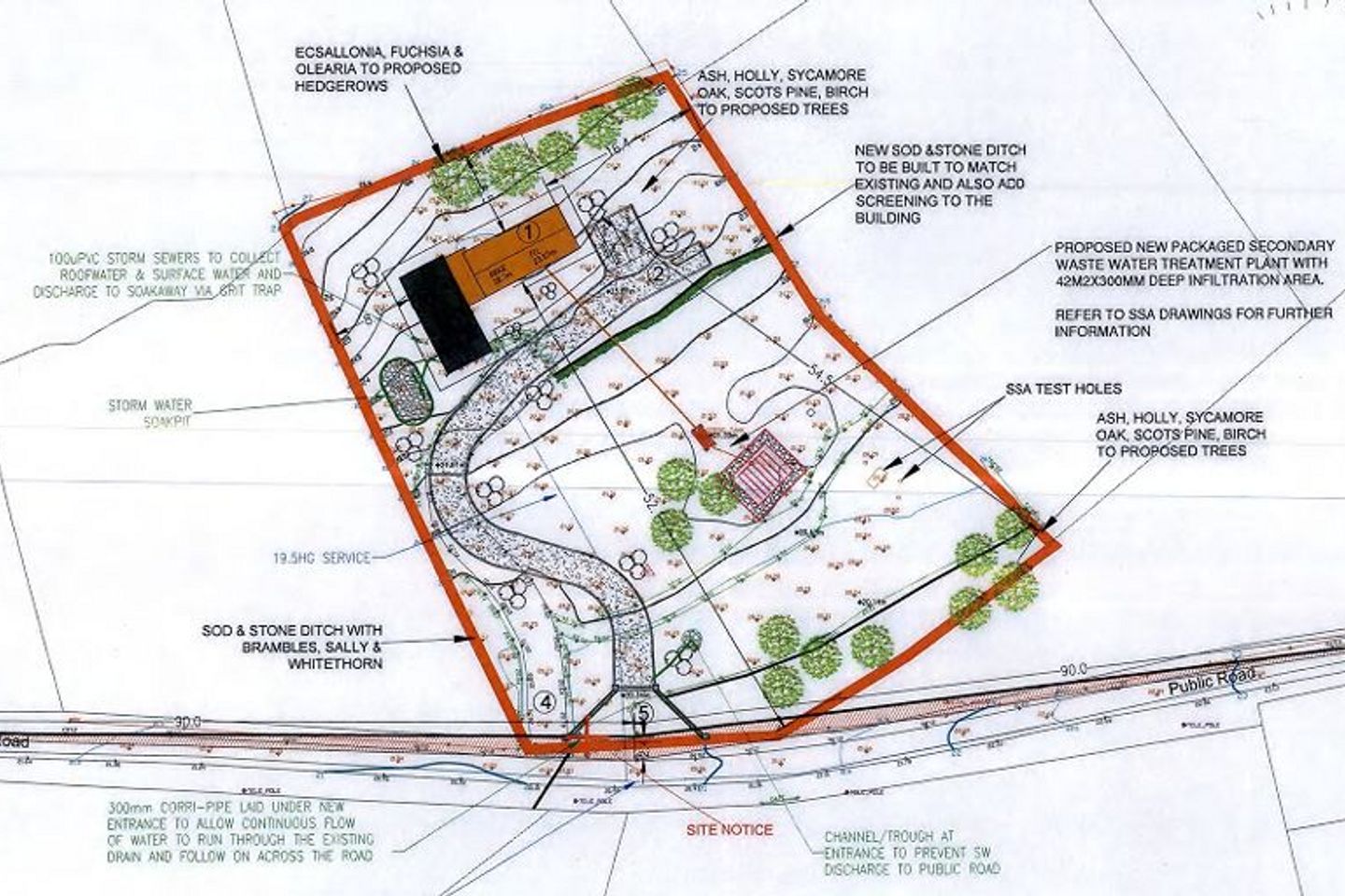
Beara Estate Agents are delighted to present this unique restoration opportunity located on the stunning Bere Island, West Cork. This site offers the perfect blend of traditional heritage and modern potential, set within a vibrant offshore community. The Vision The property includes a stone ruin of approximately 37m² situated on a generous c. 0.73-acre site. Full Planning Permission (FPP) has been secured for a sensitive restoration and contemporary extension (50.38m²). Once completed, this will create a beautiful 87m² (936 sq. ft.) home featuring: Two well-proportioned bedrooms. A bright, open-plan Kitchen/Dining/Living area designed for modern island living. Unbeatable Grant Potential This property is an ideal candidate for the Vacant Property Refurbishment Grant. Due to its location on an offshore island and its derelict status, buyers may qualify for: Up to €84,000 in funding for derelict property restoration. Additional Conservation Grants for expert advice on traditional farmhouse features. SEAI Energy Upgrade Grants (can be applied for in tandem to maximize efficiency). > This represents a significant financial head-start for any self-build or restoration enthusiast. Location & Lifestyle Bere Island is a "quiet paradise" nestled at the entrance to Bantry Bay. It is renowned for its: Managed Pace: Ideal for walkers, cyclists, and nature lovers. Thriving Community: A proactive island population with year-round amenities. Accessibility: Regular ferry services from Castletownbere and Pontoon. Whether you are looking for a tranquil permanent residence or a high-potential investment, this site offers a rare "ready-to-go" path to owning a piece of West Cork’s maritime heritage. Key Features Full Planning Permission in place (Restoration + Extension). Total Floor Area: c. 87m² upon completion. Site Size: c. 0.73 Acres. Grant Eligible: Eligible for the maximum €84,000 Island Derelict Grant. Views: Situated in a scenic coastal environment. Services: Proximity to local infrastructure for ease of connection.
The local area
The local area
Sold properties in this area
Stay informed with market trends
Local schools and transport

Learn more about what this area has to offer.
School Name | Distance | Pupils | |||
|---|---|---|---|---|---|
| School Name | Scoil Mhichíl Naofa | Distance | 5.1km | Pupils | 23 |
| School Name | Scoil An Chroí Ró Naofa | Distance | 7.3km | Pupils | 197 |
| School Name | Adrigole National School | Distance | 8.8km | Pupils | 25 |
School Name | Distance | Pupils | |||
|---|---|---|---|---|---|
| School Name | Kilcrohane National School | Distance | 9.6km | Pupils | 31 |
| School Name | Trafrask Mixed National School | Distance | 11.3km | Pupils | 20 |
| School Name | Chaitigheirn National School | Distance | 11.7km | Pupils | 72 |
| School Name | Rusnacahara National School | Distance | 13.3km | Pupils | 23 |
| School Name | Urhan National School | Distance | 13.8km | Pupils | 18 |
| School Name | Lauragh National School | Distance | 14.2km | Pupils | 25 |
| School Name | Goleen National School | Distance | 17.4km | Pupils | 31 |
School Name | Distance | Pupils | |||
|---|---|---|---|---|---|
| School Name | Beara Community School | Distance | 7.4km | Pupils | 298 |
| School Name | Schull Community College | Distance | 22.1km | Pupils | 359 |
| School Name | Colaiste Pobail Bheanntraí | Distance | 25.3km | Pupils | 766 |
School Name | Distance | Pupils | |||
|---|---|---|---|---|---|
| School Name | Pobalscoil Inbhear Scéine | Distance | 31.4km | Pupils | 614 |
| School Name | Skibbereen Community School | Distance | 39.3km | Pupils | 945 |
| School Name | Coláiste Na Sceilge | Distance | 44.9km | Pupils | 562 |
| School Name | Scoil Mhuire | Distance | 46.0km | Pupils | 106 |
| School Name | Maria Immaculata Community College | Distance | 48.5km | Pupils | 639 |
| School Name | St. Brigid's Presentation Secondary School | Distance | 50.9km | Pupils | 770 |
| School Name | St Brendan's College | Distance | 51.2km | Pupils | 873 |
Type | Distance | Stop | Route | Destination | Provider | ||||||
|---|---|---|---|---|---|---|---|---|---|---|---|
| Type | Bus | Distance | 3.8km | Stop | The Pontoon | Route | 232 | Destination | Castletownbere | Provider | Tfi Local Link Cork |
| Type | Bus | Distance | 7.1km | Stop | Castletownbere | Route | 231 | Destination | Parnell Place | Provider | Harrington's Ardgroom |
| Type | Bus | Distance | 7.2km | Stop | Castletownbere | Route | 263 | Destination | Dursey Island | Provider | Tfi Local Link Cork |
Type | Distance | Stop | Route | Destination | Provider | ||||||
|---|---|---|---|---|---|---|---|---|---|---|---|
| Type | Bus | Distance | 7.2km | Stop | Castletownbere | Route | 282 | Destination | Castletownbere | Provider | Tfi Local Link Kerry |
| Type | Bus | Distance | 7.2km | Stop | Castletownbere | Route | 232 | Destination | Castletownbere | Provider | Tfi Local Link Cork |
| Type | Bus | Distance | 7.2km | Stop | Castletownbere | Route | 236 | Destination | Bantry Via Bandon | Provider | Bus Éireann |
| Type | Bus | Distance | 8.4km | Stop | Adrigole | Route | 236 | Destination | Bantry Via Bandon | Provider | Bus Éireann |
| Type | Bus | Distance | 8.7km | Stop | Adrigole | Route | 232 | Destination | Castletownbere | Provider | Tfi Local Link Cork |
| Type | Bus | Distance | 8.7km | Stop | Adrigole | Route | 231 | Destination | Ardgroom | Provider | Harrington's Ardgroom |
| Type | Bus | Distance | 9.6km | Stop | Kilcrohane | Route | 232 | Destination | Castletownbere | Provider | Tfi Local Link Cork |
Your Mortgage and Insurance Tools
Check off the steps to purchase your new home
Use our Buying Checklist to guide you through the whole home-buying journey.
Budget calculator
Calculate how much you can borrow and what you'll need to save
A closer look
Ad performance
- Date listed20/04/2026
- Views207
- Potential views if upgraded to an Advantage Ad337
Similar properties
€95,000
Collorus, Lauragh, Co. Kerry, V93XY032 Bed · 1 Bath · DetachedAMV: €180,000
Park, Rossmaceoin, Castletownbere, Castletownbere, Co. Cork, P75WT254 Bed · 3 Bath · Detached€180,000
Apartment 2, Pier View House, West End, Castletownbere, Beara, Co. Cork, P75HT383 Bed · 2 Bath · Terrace€185,000
Inchintaglin, Adrigole, Co. Cork, P75C8943 Bed · 1 Bath · Detached
€190,000
Lehanmore, Garnish, Beara, Co. Cork, P75A5224 Bed · 1 Bath · Detached€199,950
15 Garnish Court, The Village, Glengarriff, Glengarriff, Co. Cork, P75AC622 Bed · 1 Bath · Apartment€210,000
35 Cametringane Point, Castletownbere, Beara, Co. Cork, P75Y8822 Bed · 1 Bath · Terrace€210,000
Cluin, Allihies, Beara, Co. Cork, P75X7892 Bed · 1 Bath · End of Terrace€230,000
2 Ardgroom Leisure Village, Ardgroom, Bantry, Co. Cork, P75TC953 Bed · 3 Bath · Terrace€235,000
Inchinteskin, Eyeries, Beara, Co. Cork, P75HR922 Bed · 1 Bath · Detached€245,000
24 Dalewood, Glengarriff, Glengarriff, Co. Cork, P75DT263 Bed · 3 Bath · Terrace€270,000
1 Eyeries, Beara, Co. Cork, P75CK823 Bed · 2 Bath · End of Terrace
Daft ID: 16549333
