Site 2 @ Woodlawn
€40,000
- Selling Type:By Private Treaty
About this property
Description
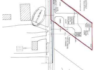
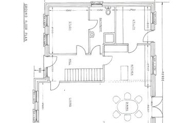
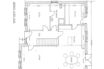
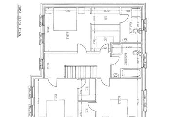
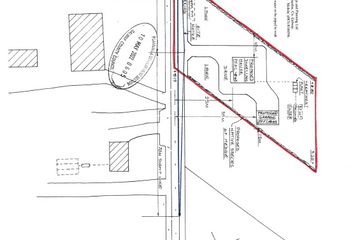
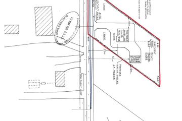
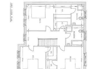
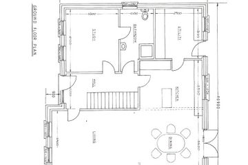
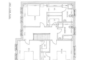
O’Donnellan & Joyce are deligthed to bring to the market two sites with FPP in Woodlawn, Ballinasloe, Co Galway.The two sites available adjacent to each other for sale with full planning permission for a single dwelling house on each. Close to Woodlawn Woods making it a scenic location. No Enurement clause/ local area clause meaning that there is no restrictions for building if you are not from the locality.3kms to Woodlawn Village, 15 minutes from Ballinasloe. 15 minutes to Kiltullagh Motorway which brings you to Galway City in 30 minutes, Athenry is only 25 minutes drive. Athlone is only a 35 minute commute and Dublin only 2 hours away. Woodlawn offers a railway station, Post Office and the Church of Ireland parish church as the central points. The landscape is a blend of woodland, bog and pasture, which give a varied texture to the area. The area is renowned for Woodlawn House while there is also a school and a small selection of shops and pubs.This offers a great opportunity for the purchasers to build a stunning home in a rural but accessible location. Planning Application: 22604 (Galway County Council)To construct a fully serviced private dwelling house with waste water treatment system and private garage/fuel shed to include all associated site works. Gross floor space of proposed works: 193.25 sqm (House) & 53.94 sqm (Garage/fuel shed)Folio GY83506FFor Further details please contact our office on 091-564212 Properties can be viewed on our website www.odj.ie OFFICE OPENING HOURS - MON TO FRI 9AM TO 5:30PMNOTE: These particulars are not to be considered a formal offer. They are for information only and give a general idea of the property. They are not to be taken as forming any part of a resulting contract, nor to be relied upon as statements or representations of fact. Whilst every care is taken in their preparation, neither O
The local area
The local area
Sold properties in this area
Stay informed with market trends
Local schools and transport

Learn more about what this area has to offer.
School Name | Distance | Pupils | |||
|---|---|---|---|---|---|
| School Name | S N An Cnoc Bhreac | Distance | 2.3km | Pupils | 107 |
| School Name | St Gabriel's National School | Distance | 5.0km | Pupils | 58 |
| School Name | Cappataggle National School | Distance | 7.2km | Pupils | 108 |
School Name | Distance | Pupils | |||
|---|---|---|---|---|---|
| School Name | Ballymacward National School | Distance | 7.7km | Pupils | 81 |
| School Name | Brackloon National School | Distance | 8.4km | Pupils | 31 |
| School Name | Gurteen National School | Distance | 8.5km | Pupils | 48 |
| School Name | Attymon National School | Distance | 8.7km | Pupils | 2 |
| School Name | St Patrick's National School Fohenagh | Distance | 9.4km | Pupils | 24 |
| School Name | Bullaun National School | Distance | 9.4km | Pupils | 219 |
| School Name | S N Cill Richill | Distance | 10.2km | Pupils | 61 |
School Name | Distance | Pupils | |||
|---|---|---|---|---|---|
| School Name | Coláiste Chilleáin Naofa St. Killian's College | Distance | 2.4km | Pupils | 173 |
| School Name | St. Cuan's College | Distance | 12.1km | Pupils | 410 |
| School Name | St. Raphael's College | Distance | 14.8km | Pupils | 741 |
School Name | Distance | Pupils | |||
|---|---|---|---|---|---|
| School Name | St. Brigid's College | Distance | 14.9km | Pupils | 754 |
| School Name | Garbally College | Distance | 15.1km | Pupils | 460 |
| School Name | Clonfert College | Distance | 15.3km | Pupils | 0 |
| School Name | Ardscoil Mhuire | Distance | 15.3km | Pupils | 481 |
| School Name | Coláiste An Chreagáin | Distance | 15.7km | Pupils | 103 |
| School Name | Holy Rosary College | Distance | 16.7km | Pupils | 727 |
| School Name | Clarin College | Distance | 18.0km | Pupils | 1102 |
Type | Distance | Stop | Route | Destination | Provider | ||||||
|---|---|---|---|---|---|---|---|---|---|---|---|
| Type | Bus | Distance | 2.3km | Stop | New Inn | Route | 548 | Destination | Loughrea | Provider | Tfi Local Link Galway |
| Type | Rail | Distance | 2.6km | Stop | Woodlawn | Route | Rail | Destination | Athlone | Provider | Irish Rail |
| Type | Rail | Distance | 2.6km | Stop | Woodlawn | Route | Rail | Destination | Galway (ceannt) | Provider | Irish Rail |
Type | Distance | Stop | Route | Destination | Provider | ||||||
|---|---|---|---|---|---|---|---|---|---|---|---|
| Type | Bus | Distance | 5.4km | Stop | Kilconnell | Route | 548 | Destination | Loughrea | Provider | Tfi Local Link Galway |
| Type | Bus | Distance | 6.6km | Stop | Cappataggle | Route | 548 | Destination | Loughrea | Provider | Tfi Local Link Galway |
| Type | Rail | Distance | 8.6km | Stop | Attymon | Route | Rail | Destination | Galway (ceannt) | Provider | Irish Rail |
| Type | Bus | Distance | 9.6km | Stop | Bullaun | Route | 548 | Destination | Loughrea | Provider | Tfi Local Link Galway |
| Type | Bus | Distance | 10.7km | Stop | Aughrim | Route | 763 | Destination | Galway | Provider | Citylink |
| Type | Bus | Distance | 12.8km | Stop | Ahascragh | Route | 546 | Destination | Castlerea | Provider | Tfi Local Link Galway |
| Type | Bus | Distance | 12.8km | Stop | Ahascragh | Route | 546 | Destination | Ballinasloe | Provider | Tfi Local Link Galway |
Your Mortgage and Insurance Tools
Check off the steps to purchase your new home
Use our Buying Checklist to guide you through the whole home-buying journey.
Budget calculator
Calculate how much you can borrow and what you'll need to save
Ad performance
- Date listed03/02/2023
- Views6,138
- Potential views if upgraded to an Advantage Ad10,005
Similar properties
€50,000
Attyrory, Creagh, Ballinasloe, Co. RoscommonSite€155,000
Apartment 4, River View, Main Street, Ballinasloe, Co. Galway, H53PR842 Bed · 1 Bath · Apartment€180,000
16 Bridge Court, Bridge Street, Ballinasloe, Co. Galway, H53XV262 Bed · 1 Bath · Semi-D€195,000
Church Hill, Ballinasloe, Co. Galway, H53P5F32 Bed · 1 Bath · Semi-D
€195,000
9 Dunlo Hill, Ballinasloe, Co. Galway, H53E7354 Bed · 2 Bath · Townhouse€195,000
Hill View, Kilclooney, Ballinasloe, Co. Galway, H53D5R94 Bed · 2 Bath · Detached€200,000
Poolboy, Ballinasloe, Co. Galway, H53A0362 Bed · 2 Bath · Detached€200,000
1 Dunlo View, Dunlo Hill , Ballinasloe, Co. Galway, H53X9782 Bed · 1 Bath · Semi-D€210,000
39 Esker Hills, Ballinasloe, Ballinasloe, Co. Galway, H53FT593 Bed · 3 Bath · Semi-D€240,000
2 Willow Park, Derrymullan, Ballinasloe, Co. Galway, H53P0293 Bed · 2 Bath · Detached€270,000
37 Beechlawn Heights, Ballinasloe, Co. Galway, H53P5824 Bed · 3 Bath · Semi-D€290,000
25 Lios Garbh, Portnick, Ballinasloe, Co. Galway, H53CD803 Bed · 3 Bath · Semi-D
Daft ID: 115127918