Site With Full Planning Permission at Grallagh, Menlough, Ballinasloe, Co. Galway
€55,000
- Selling Type:By Private Treaty
About this property
Description
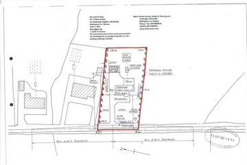
Discover the perfect opportunity to build your dream home at this prime site in Grallagh, Menlough, Ballinasloe, Co. Galway. Ideally situated just minutes' walk from the charming village of Menlough, this location offers convenient access to local amenities, including a primary school, pub, shop, and sports club. The site boasts full planning permission, granted in August 2021, for a spacious 2,474.15 sq. ft. two-storey residence, complemented by a detached garage. With approximately 0.60 acres of space, this property provides ample room to create a home tailored to your lifestyle. Athenry town, located approximately 20 minutes' drive from Menlough, is also a thriving hub, further boosted by the arrival of Dexcom, a world-leading pharmaceutical factory currently under construction. This significant development enhances the region's economy and infrastructure, making the area an even more attractive place to live. For further details, contact the auctioneer Cathal Meares today. Don't miss this incredible opportunity to secure a site in a vibrant and well-connected community. Directions: From Menlough village, head east on R339 for 850m. Turn left on L7230 and continue straight for 500m. Note: Sign "For Sale" on site. Gary Keogh Solicitor, Limerick - 061 361 511 Accommodation Note: Please note we have not tested any apparatus, fixtures, fittings, or services. Interested parties must undertake their own investigation into the working order of these items. All measurements are approximate and photographs provided for guidance only. Property Reference :RMAT30000051
The local area
Sold properties in this area
Stay informed with market trends
Local schools and transport

Learn more about what this area has to offer.
School Name | Distance | Pupils | |||
|---|---|---|---|---|---|
| School Name | Scoil Mhuire Naofa | Distance | 720m | Pupils | 108 |
| School Name | Garbally National School | Distance | 5.3km | Pupils | 55 |
| School Name | Castleblakeney National School | Distance | 5.8km | Pupils | 46 |
School Name | Distance | Pupils | |||
|---|---|---|---|---|---|
| School Name | Gurteen National School | Distance | 6.0km | Pupils | 48 |
| School Name | St. Mary's National School | Distance | 6.5km | Pupils | 176 |
| School Name | Ballymacward National School | Distance | 6.7km | Pupils | 81 |
| School Name | Moylough National School | Distance | 6.8km | Pupils | 147 |
| School Name | Caltra National School | Distance | 7.8km | Pupils | 98 |
| School Name | Scoil Bride | Distance | 7.8km | Pupils | 24 |
| School Name | Brierfield National School | Distance | 8.1km | Pupils | 72 |
School Name | Distance | Pupils | |||
|---|---|---|---|---|---|
| School Name | St. Cuan's College | Distance | 5.9km | Pupils | 410 |
| School Name | Coláiste An Chreagáin | Distance | 6.5km | Pupils | 103 |
| School Name | Holy Rosary College | Distance | 6.5km | Pupils | 727 |
School Name | Distance | Pupils | |||
|---|---|---|---|---|---|
| School Name | Coláiste Chilleáin Naofa St. Killian's College | Distance | 14.8km | Pupils | 173 |
| School Name | Clarin College | Distance | 18.4km | Pupils | 1102 |
| School Name | Coláiste An Eachréidh | Distance | 18.5km | Pupils | 238 |
| School Name | Coláiste Mhuire | Distance | 19.3km | Pupils | 294 |
| School Name | Presentation College | Distance | 19.4km | Pupils | 1081 |
| School Name | Glenamaddy Community School | Distance | 20.2km | Pupils | 420 |
| School Name | Archbishop Mchale College | Distance | 21.0km | Pupils | 471 |
Type | Distance | Stop | Route | Destination | Provider | ||||||
|---|---|---|---|---|---|---|---|---|---|---|---|
| Type | Bus | Distance | 990m | Stop | Menlough | Route | 425a | Destination | Galway | Provider | Bus Éireann |
| Type | Bus | Distance | 3.5km | Stop | Moyure | Route | 425a | Destination | Galway | Provider | Bus Éireann |
| Type | Bus | Distance | 5.3km | Stop | Garbally | Route | 425a | Destination | Mountbellew | Provider | Bus Éireann |
Type | Distance | Stop | Route | Destination | Provider | ||||||
|---|---|---|---|---|---|---|---|---|---|---|---|
| Type | Bus | Distance | 5.7km | Stop | Castleblakeney | Route | 425a | Destination | Mountbellew | Provider | Bus Éireann |
| Type | Bus | Distance | 6.4km | Stop | Mountbellew | Route | 425a | Destination | Mountbellew | Provider | Bus Éireann |
| Type | Bus | Distance | 6.4km | Stop | Mountbellew | Route | 546 | Destination | Castlerea | Provider | Tfi Local Link Galway |
| Type | Bus | Distance | 6.4km | Stop | Mountbellew | Route | 65 | Destination | Galway | Provider | Bus Éireann |
| Type | Bus | Distance | 6.4km | Stop | Mountbellew | Route | 425 | Destination | Longford | Provider | Bus Éireann |
| Type | Bus | Distance | 6.4km | Stop | Mountbellew | Route | 433 | Destination | Roscommon | Provider | Bus4u |
| Type | Bus | Distance | 6.9km | Stop | Moylough | Route | 425 | Destination | Longford | Provider | Bus Éireann |
Your Mortgage and Insurance Tools
Check off the steps to purchase your new home
Use our Buying Checklist to guide you through the whole home-buying journey.
Budget calculator
Calculate how much you can borrow and what you'll need to save
Ad performance
- Date listed13/06/2025
- Views2,661
- Potential views if upgraded to an Advantage Ad4,337
Properties similar to this property
€80,000
Site with Full Planning Permission at Kilgarve, Ballinasloe, Co. GalwaySite€150,000
19 Dunlo Harbour, Harbour Road, Ballinasloe, Co. Galway, H53D5422 Bed · 1 Bath · Terrace€155,000
Apartment 4, River View, Main Street, Ballinasloe, Co. Galway, H53PR842 Bed · 1 Bath · Apartment€175,000
1 Cúirt Slua, Church Street, Ballinasloe, Co. Galway, H53HW652 Bed · 2 Bath · Apartment
€180,000
16 Bridge Court, Bridge Street, Ballinasloe, Co. Galway, H53XV262 Bed · 1 Bath · Semi-D€186,000
14 Curragh Park, Ballinasloe, Ballinasloe, Co. Galway, H53XY683 Bed · 1 Bath · Semi-D€190,000
6 Cúirt Slua, Church Street, Ballinasloe, Co. Galway, H53FP293 Bed · 2 Bath · Terrace€195,000
Church Hill, Ballinasloe, Co. Galway, H53P5F32 Bed · 1 Bath · Semi-D€200,000
1 Dunlo View, Dunlo Hill , Ballinasloe, Co. Galway, H53X9782 Bed · 1 Bath · Semi-D€255,000
7 Meadowbrook Gardens, Ballinasloe, Co. Galway, H53XH004 Bed · 2 Bath · Semi-D€265,000
11 Dun Esker, Ballinasloe, Ballinasloe, Co. Galway, H53DE274 Bed · 2 Bath · Semi-D€275,000
Ellenchase, Derrymullan, Ballinasloe, Co. Galway, H53E4254 Bed · 1 Bath · Bungalow
Daft ID: 122043373