Site with Full Planning Permission at Killure, Ahascragh, Ballinasloe, Co. Galway, H53AC92
€60,000
- Selling Type:By Private Treaty
About Site with Full Planning Permission at Killure, Ahascragh
Description
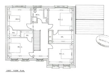
Prime Residential Site with Full Planning Permission – Killure, Ballinasloe, Co. Galway €70,000 | 0.865 Acres | Planning Ref: 211406 | Folio GY82217F A fantastic opportunity to acquire a prime residential site located in Killure, in the townland of Caltraghlea, just a short drive from Ahascragh and Ballinasloe town. Measuring a generous 0.865 acres, this site comes with full planning permission (Ref: 211406 – Galway County Council) for a detached two-storey dwelling (193.5 sq.m) and a separate garage (53.95 sq.m). Key Features: Full planning permission in place – ready to go Located just past Killure National School and very close to Killure Church Water already connected on site – a significant advantage for immediate development Attractive stone wall built to the front boundary, enhancing the value and kerb appeal Quiet rural setting, yet only minutes from Ballinasloe town and local amenities Easy access to the M6 motorway, Galway City and Athlone Directions: From Ballinasloe, head towards Killure. Turn left at Killure Church. The site is located on your left-hand side, just past Killure National School. This is an ideal opportunity for anyone looking to build a family home in a peaceful countryside location while remaining close to schools, shops and transport links. Guide Price: €70,000 Early viewing is highly recommended.
The local area of Site with Full Planning Permission at Killure, Ahascragh
Sold properties in this area
Stay informed with market trends
Local schools and transport

Learn more about what this area has to offer.
School Name | Distance | Pupils | |||
|---|---|---|---|---|---|
| School Name | Killure National School | Distance | 180m | Pupils | 49 |
| School Name | Eglish Primary School | Distance | 3.9km | Pupils | 64 |
| School Name | Scoil Uí Cheithearnaigh | Distance | 5.8km | Pupils | 190 |
School Name | Distance | Pupils | |||
|---|---|---|---|---|---|
| School Name | St Patrick's National School Fohenagh | Distance | 6.0km | Pupils | 24 |
| School Name | St. Catherine's National School | Distance | 6.2km | Pupils | 102 |
| School Name | Ballinasloe National School | Distance | 6.3km | Pupils | 296 |
| School Name | Newtown National School | Distance | 6.3km | Pupils | 119 |
| School Name | The Glebe National School | Distance | 6.3km | Pupils | 17 |
| School Name | Kilglass National School | Distance | 6.5km | Pupils | 141 |
| School Name | St. Teresa's Special School | Distance | 7.0km | Pupils | 45 |
School Name | Distance | Pupils | |||
|---|---|---|---|---|---|
| School Name | Garbally College | Distance | 5.6km | Pupils | 460 |
| School Name | Ardscoil Mhuire | Distance | 5.9km | Pupils | 481 |
| School Name | Clonfert College | Distance | 5.9km | Pupils | 0 |
School Name | Distance | Pupils | |||
|---|---|---|---|---|---|
| School Name | St. Cuan's College | Distance | 13.3km | Pupils | 410 |
| School Name | Coláiste Chilleáin Naofa St. Killian's College | Distance | 13.7km | Pupils | 173 |
| School Name | Coláiste An Chreagáin | Distance | 16.2km | Pupils | 103 |
| School Name | Holy Rosary College | Distance | 17.5km | Pupils | 727 |
| School Name | Coláiste Mhuire | Distance | 18.3km | Pupils | 294 |
| School Name | Coláiste Chiaráin | Distance | 21.9km | Pupils | 958 |
| School Name | St. Raphael's College | Distance | 24.8km | Pupils | 741 |
Type | Distance | Stop | Route | Destination | Provider | ||||||
|---|---|---|---|---|---|---|---|---|---|---|---|
| Type | Bus | Distance | 4.5km | Stop | Ahascragh | Route | 546 | Destination | Ballinasloe | Provider | Tfi Local Link Galway |
| Type | Rail | Distance | 5.2km | Stop | Ballinasloe | Route | Rail | Destination | Galway (ceannt) | Provider | Irish Rail |
| Type | Bus | Distance | 5.3km | Stop | Ballinasloe Station | Route | 547 | Destination | Portumna | Provider | Tfi Local Link Galway |
Type | Distance | Stop | Route | Destination | Provider | ||||||
|---|---|---|---|---|---|---|---|---|---|---|---|
| Type | Bus | Distance | 5.3km | Stop | Ballinasloe Station | Route | 546 | Destination | Ballinasloe | Provider | Tfi Local Link Galway |
| Type | Bus | Distance | 5.3km | Stop | Ballinasloe Station | Route | 548 | Destination | Athlone | Provider | Tfi Local Link Galway |
| Type | Bus | Distance | 6.2km | Stop | Portiuncula Hospital | Route | 547 | Destination | Ballinasloe | Provider | Tfi Local Link Galway |
| Type | Bus | Distance | 6.2km | Stop | Portiuncula Hospital | Route | 546 | Destination | Ballinasloe | Provider | Tfi Local Link Galway |
| Type | Bus | Distance | 6.2km | Stop | Portiuncula Hospital | Route | 763x | Destination | Galway Cathedral | Provider | Citylink |
| Type | Bus | Distance | 6.2km | Stop | Portiuncula Hospital | Route | 763 | Destination | Galway | Provider | Citylink |
| Type | Bus | Distance | 6.6km | Stop | Aughrim | Route | 763 | Destination | Dublin Airport | Provider | Citylink |
Your Mortgage and Insurance Tools
Check off the steps to purchase your new home
Use our Buying Checklist to guide you through the whole home-buying journey.
Budget calculator
Calculate how much you can borrow and what you'll need to save
Ad performance
- Date listed22/05/2025
- Views2,263
- Potential views if upgraded to an Advantage Ad3,689
Properties similar to Site with Full Planning Permission at Killure, Ahascragh
€80,000
Site with Full Planning Permission at Kilgarve, Ballinasloe, Co. GalwaySite€150,000
19 Dunlo Harbour, Harbour Road, Ballinasloe, Co. Galway, H53D5422 Bed · 1 Bath · Terrace€155,000
Apartment 4, River View, Main Street, Ballinasloe, Co. Galway, H53PR842 Bed · 1 Bath · Apartment€175,000
1 Cúirt Slua, Church Street, Ballinasloe, Co. Galway, H53HW652 Bed · 2 Bath · Apartment
€180,000
16 Bridge Court, Bridge Street, Ballinasloe, Co. Galway, H53XV262 Bed · 1 Bath · Semi-D€186,000
14 Curragh Park, Ballinasloe, Ballinasloe, Co. Galway, H53XY683 Bed · 1 Bath · Semi-D€190,000
6 Cúirt Slua, Church Street, Ballinasloe, Co. Galway, H53FP293 Bed · 2 Bath · Terrace€195,000
Church Hill, Ballinasloe, Co. Galway, H53P5F32 Bed · 1 Bath · Semi-D€200,000
1 Dunlo View, Dunlo Hill , Ballinasloe, Co. Galway, H53X9782 Bed · 1 Bath · Semi-D€255,000
7 Meadowbrook Gardens, Ballinasloe, Co. Galway, H53XH004 Bed · 2 Bath · Semi-D€265,000
11 Dun Esker, Ballinasloe, Ballinasloe, Co. Galway, H53DE274 Bed · 2 Bath · Semi-D€275,000
Ellenchase, Derrymullan, Ballinasloe, Co. Galway, H53E4254 Bed · 1 Bath · Bungalow
Daft ID: 16143363