2,350 Sites for Sale in Ireland
Curraghmore, Bofeenaun, Ballina, Co. Mayo, F26E3E8
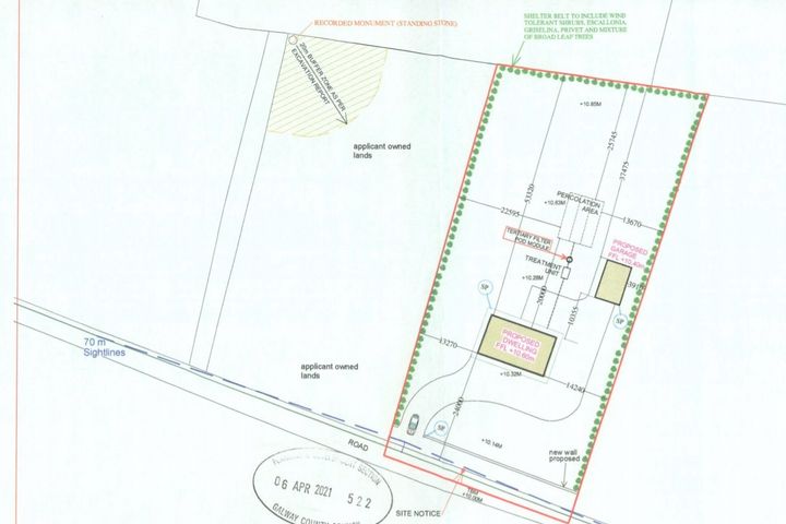
0.5 acSiteViewing AdvisedMureen, Claremorris, Co. Mayo
18 acSiteLaharn, Killorglin, Co. Kerry, V93V2N2
1 acSiteCastlegaddery, Ballynacarrigy, Co. Westmeath
0.8 acSiteClaggan, Glenisland, Castlebar, Co. Mayo
0.7 acSiteCarrowbrinoge, Snugboro, Castlebar, Co. Mayo
0.75 acSiteArdeevin, Glenamaddy, Co. Galway
0.96 acSiteLismeegan, Aghamore, Ballyhaunis, Co. Mayo
0.62 acSiteOld Fintra Road, Killybegs, Co. Donegal
0.5 acSite1.5 Acre Residential Site 2, Drumone, Co. Meath
1.5 acSite1.5 Acre Residential Site 1, Drumone, Co. Meath
1.5 acSite
Jeffrystown, Mullingar, Co. Westmeath
1 acSiteFossabeg, Scarriff, Co. Clare
1.28 acSiteThe Hill, Abbeyfeale, Co. Limerick, V94TVC0
0.64 acSiteMilltown, Milltown, Co. Galway
4 acSiteCoolnamara, Borris, Co. Carlow
2.9 acSiteCoolboy Little, Letterkenny, Co. Donegal
1.2 acSiteDerrygowna, Lanesborough, Co. Longford, N39PT88
0.5 acSiteGraigueagowan
0.74 acSiteGlennamucklagh East, Newmarket, Co. Cork
0.98 acSite
Explore Sold Properties
Stay informed with recent sales and market trends.