Ballygurrane south, Athenry, Co. Galway
€160,000
- Selling Type:By Private Treaty
About this property
Highlights
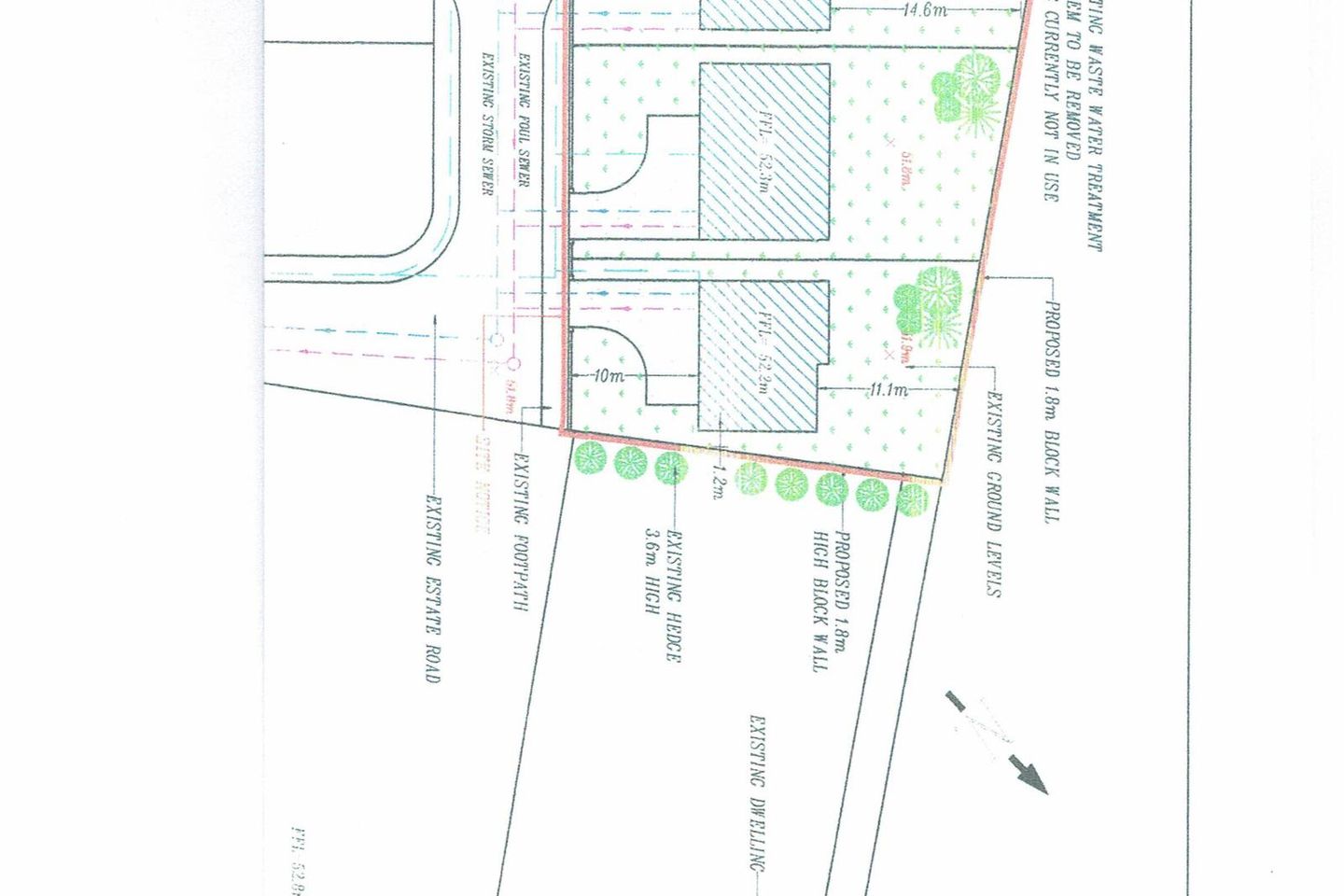
- Outline planning permission in place from May 2025
- Fully serviced site
- On private road walking distance from town
- Mains sewage and water
- Rare opportunity to build your own property in this fast growing town
Description
Town Site for Sale - Site 1 (Circa 0.14 Acres) Frank Sweeney & Co. is offering for sale this fully serviced site at Ballygurrane South, Athenry, Co. Galway. No rural clauses or enurement clauses. The site is being sold with recently granted outline planning permission for a single dwelling house and comes with services already to the front path for water, electricity, sewerage and telecoms. This site is in an excellent location and is a rare opportunity to purchase a town site on a private road at the end of a cul de sac. Offering highly convenient accessibility to Athenry town centre and its amenities, with shops, schools, train station and bus service all within easy walking distance. Motorway access only minutes away for easy commuting. This site is within walking distance to the town and all of it's amenities. The train station is in walking distance. The town center, schools, shops are also conveniently close. Athenry is well served with 3 secondary schools, 3 primary schools in the town and numerous rural schools within easy reach. The Athenry ring road is a few hundred meters away as is the Raheen Woods hotel with its Gym and swimming pool. For further details please the office on 091844126. Frank Sweeney & Co. and its employees seek to have accurate information on this advertisement. However, Frank Sweeney & Co. cannot guarantee the accuracy, currency or completeness of the information and material on this advertisement (including any measurements, drawings, plans, photos or descriptions). Users of this advertisement should make their own inquiries as to the accuracy, currency or completeness of such information and material including inspecting, visiting, measuring and obtaining your own legal, financial, property or other appropriate advice. To the extent permitted by law, Frank Sweeney & Co. disclaims any liability for any loss or damage suffered by persons relying on any information or material (including its accuracy, currency or completeness) on this advertisement.
The local area
The local area
Sold properties in this area
Stay informed with market trends
Local schools and transport

Learn more about what this area has to offer.
School Name | Distance | Pupils | |||
|---|---|---|---|---|---|
| School Name | Gaelscoil Riada | Distance | 820m | Pupils | 168 |
| School Name | Athenry Primary School | Distance | 910m | Pupils | 514 |
| School Name | Carnaun National School | Distance | 4.3km | Pupils | 97 |
School Name | Distance | Pupils | |||
|---|---|---|---|---|---|
| School Name | Coldwood National School | Distance | 5.4km | Pupils | 99 |
| School Name | Esker National School | Distance | 5.6km | Pupils | 72 |
| School Name | Craughwell National School | Distance | 6.8km | Pupils | 314 |
| School Name | Newcastle National School | Distance | 7.1km | Pupils | 199 |
| School Name | Kiltullagh National School | Distance | 8.5km | Pupils | 196 |
| School Name | Killeeneen National School | Distance | 9.1km | Pupils | 198 |
| School Name | Coolarne National School | Distance | 9.2km | Pupils | 74 |
School Name | Distance | Pupils | |||
|---|---|---|---|---|---|
| School Name | Coláiste An Eachréidh | Distance | 880m | Pupils | 238 |
| School Name | Presentation College | Distance | 920m | Pupils | 1081 |
| School Name | Clarin College | Distance | 1.0km | Pupils | 1102 |
School Name | Distance | Pupils | |||
|---|---|---|---|---|---|
| School Name | Calasanctius College | Distance | 12.0km | Pupils | 925 |
| School Name | Coláiste Bhaile Chláir | Distance | 12.4km | Pupils | 1315 |
| School Name | Coláiste Mhuirlinne/merlin College | Distance | 14.9km | Pupils | 725 |
| School Name | Galway Educate Together Secondary School | Distance | 16.1km | Pupils | 350 |
| School Name | St. Raphael's College | Distance | 17.2km | Pupils | 741 |
| School Name | St. Brigid's College | Distance | 17.5km | Pupils | 754 |
| School Name | Coláiste Chilleáin Naofa St. Killian's College | Distance | 18.1km | Pupils | 173 |
Type | Distance | Stop | Route | Destination | Provider | ||||||
|---|---|---|---|---|---|---|---|---|---|---|---|
| Type | Rail | Distance | 860m | Stop | Athenry | Route | Rail | Destination | Galway (ceannt) | Provider | Irish Rail |
| Type | Rail | Distance | 860m | Stop | Athenry | Route | Rail | Destination | Athlone | Provider | Irish Rail |
| Type | Rail | Distance | 860m | Stop | Athenry | Route | Rail | Destination | Dublin Heuston | Provider | Irish Rail |
Type | Distance | Stop | Route | Destination | Provider | ||||||
|---|---|---|---|---|---|---|---|---|---|---|---|
| Type | Rail | Distance | 860m | Stop | Athenry | Route | Rail | Destination | Athenry | Provider | Irish Rail |
| Type | Rail | Distance | 860m | Stop | Athenry | Route | Rail | Destination | Limerick (colbert) | Provider | Irish Rail |
| Type | Rail | Distance | 860m | Stop | Athenry | Route | Rail | Destination | Ennis | Provider | Irish Rail |
| Type | Bus | Distance | 5.3km | Stop | Coosaun Cross | Route | 425a | Destination | Galway | Provider | Bus Éireann |
| Type | Bus | Distance | 5.3km | Stop | Coosaun Cross | Route | 425a | Destination | Mountbellew | Provider | Bus Éireann |
| Type | Bus | Distance | 5.4km | Stop | Coldwood | Route | 920 | Destination | Dublin Road | Provider | Healy Bus |
| Type | Bus | Distance | 5.4km | Stop | Coldwood | Route | 920 | Destination | Uni Of Galway | Provider | Healy Bus |
Your Mortgage and Insurance Tools
Check off the steps to purchase your new home
Use our Buying Checklist to guide you through the whole home-buying journey.
Budget calculator
Calculate how much you can borrow and what you'll need to save
Ad performance
- 01/07/2025Entered
- 1,989Property Views
- 3,242
Potential views if upgraded to a Daft Advantage Ad
Learn How
Similar properties
€160,000
Ballygurrane south, Athenry, Co. GalwaySite€250,000
North Gate Street, Athenry, Co. Galway, H65F6634 Bed · 1 Bath · Terrace€250,000
North Gate Street, Athenry, Co. Galway, H65AK764 Bed · 2 Bath · Terrace€306,000
1 Bed, The Willows, The Willows, Raheen , Athenry, Co. Galway1 Bed · 1 Bath · Duplex
€320,000
21 Caislean Ri, Athenry, Co. Galway, H65TK663 Bed · 2 Bath · End of Terrace€350,000
37 Ard Esker, Tuam Road , Athenry, Co. Galway, H65Y5353 Bed · 2 Bath · Semi-D€350,000
72 The Willows, Athenry, Co. Galway, H65Y4892 Bed · 3 Bath · Terrace€350,000
43 Ard Esker, Athenry, Co. Galway, H65XV383 Bed · 3 Bath · Semi-D€351,000
2 bed, The Willows, The Willows, Raheen , Athenry, Co. Galway2 Bed · 1 Bath · Duplex€356,000
2 Bed, The Willows, The Willows, Raheen , Athenry, Co. Galway2 Bed · 1 Bath · Duplex€365,000
40 Parklands, Athenry, Co Galway, H65H9713 Bed · 3 Bath · Semi-D€460,000
Carrowntober East, Athenry, Athenry, Co. Galway, H65FX614 Bed · 3 Bath · Bungalow
Daft ID: 122134272
