1 Fitzgibbon Lane, Dublin 1, D01X4V2
€210,000
- Selling Type:By Private Treaty
- BER No:800764961
- Energy Performance:358.91 kWh/m2/yr
- Available From:Immediately
About this property
Description
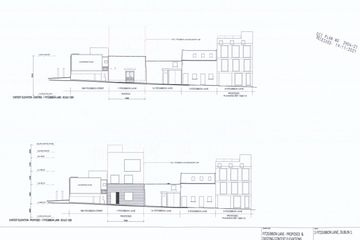
Jim Gallagher of Corry Estates is delighted to bring site @ 1 Fitzgibbon Lane to the market for sale. There is full permission in place for the development of a three-storey mews house at 1 Fitzgibbon Lane, Dublin 1. The development will consist of the conversion of the existing single-storey storage building and the construction of an additional two storeys to give a three-storey mews house. It includes entrance, storage, ground floor WC, and a home office at ground floor. Three Bedrooms and two bathrooms at first floor. Open plan kitchen-dining and living area at second floor, all measuring 149 m2. It includes an accessible roof terrace measuring 38m2 at roof level, incorporating renewable technology. It will include all associated ancillary works and services. Dublin City Council Planning REF: 3904 / 21. Planning Ref: 3904/21. Full planning permission in place. Located in the heart of Dublin City. Price on Application. Exceptional city centre location. Close to a host of amenities.
The local area
The local area
Local schools and transport

Learn more about what this area has to offer.
School Name | Distance | Pupils | |||
|---|---|---|---|---|---|
| School Name | Gardiner Street Primary School | Distance | 160m | Pupils | 313 |
| School Name | O'Connell Primary School | Distance | 360m | Pupils | 155 |
| School Name | An Taonad Reamhscoil | Distance | 430m | Pupils | 93 |
School Name | Distance | Pupils | |||
|---|---|---|---|---|---|
| School Name | Temple Street Hospital School | Distance | 440m | Pupils | 69 |
| School Name | Rutland National School | Distance | 470m | Pupils | 153 |
| School Name | Gaelscoil Cholásite Mhuire | Distance | 600m | Pupils | 161 |
| School Name | St Vincent's Boys School | Distance | 650m | Pupils | 89 |
| School Name | North William St Girls | Distance | 660m | Pupils | 212 |
| School Name | Central Model Senior School | Distance | 710m | Pupils | 242 |
| School Name | Scoil Chaoimhín | Distance | 730m | Pupils | 63 |
School Name | Distance | Pupils | |||
|---|---|---|---|---|---|
| School Name | O'Connell School | Distance | 390m | Pupils | 215 |
| School Name | Belvedere College S.j | Distance | 450m | Pupils | 1004 |
| School Name | Larkin Community College | Distance | 630m | Pupils | 414 |
School Name | Distance | Pupils | |||
|---|---|---|---|---|---|
| School Name | Mount Carmel Secondary School | Distance | 1.0km | Pupils | 398 |
| School Name | The Brunner | Distance | 1.5km | Pupils | 219 |
| School Name | Rosmini Community School | Distance | 1.7km | Pupils | 111 |
| School Name | St Vincents Secondary School | Distance | 1.7km | Pupils | 409 |
| School Name | St. Joseph's Secondary School | Distance | 1.7km | Pupils | 263 |
| School Name | C.b.s. Westland Row | Distance | 1.8km | Pupils | 202 |
| School Name | St Josephs Secondary School | Distance | 1.8km | Pupils | 238 |
Type | Distance | Stop | Route | Destination | Provider | ||||||
|---|---|---|---|---|---|---|---|---|---|---|---|
| Type | Bus | Distance | 130m | Stop | Mountjoy Square | Route | 7d | Destination | Mountjoy Square | Provider | Dublin Bus |
| Type | Bus | Distance | 160m | Stop | Mountjoy Square | Route | 7 | Destination | Brides Glen | Provider | Dublin Bus |
| Type | Bus | Distance | 160m | Stop | Mountjoy Square | Route | 7d | Destination | Dalkey | Provider | Dublin Bus |
Type | Distance | Stop | Route | Destination | Provider | ||||||
|---|---|---|---|---|---|---|---|---|---|---|---|
| Type | Bus | Distance | 160m | Stop | Mountjoy Square | Route | 7b | Destination | Mountjoy Square | Provider | Dublin Bus |
| Type | Bus | Distance | 160m | Stop | Mountjoy Square | Route | 7b | Destination | Shankill | Provider | Dublin Bus |
| Type | Bus | Distance | 160m | Stop | Mountjoy Square | Route | 7e | Destination | Mountjoy Square | Provider | Dublin Bus |
| Type | Bus | Distance | 160m | Stop | Mountjoy Square | Route | 7d | Destination | Mountjoy Square | Provider | Dublin Bus |
| Type | Bus | Distance | 160m | Stop | Mountjoy Square | Route | 7 | Destination | Mountjoy Square | Provider | Dublin Bus |
| Type | Bus | Distance | 160m | Stop | Mountjoy Square | Route | 7a | Destination | Mountjoy Square | Provider | Dublin Bus |
| Type | Bus | Distance | 160m | Stop | Mountjoy Square | Route | 7a | Destination | Loughlinstown Pk | Provider | Dublin Bus |
BER Details
BER No: 800764961
Energy Performance Indicator: 358.91 kWh/m2/yr
Statistics
- 26/11/2025Entered
- 1,442Property Views
Daft ID: 523652001