Site, 3a Kincora Grove, Dublin 3, Co. Dublin, D03HY45
€550,000
- Price per m²:€2,792
- Estimated Stamp Duty:€5,500
- Selling Type:By Private Treaty
About this property
Highlights
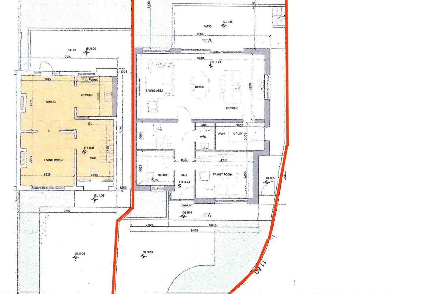
- Site with FPP for 5 bedroom detached home c 197 SqM
- Most popular location off Castle Avenue & The Stiles Road
- WEST facing rear garden
- TITLE: FREEHOLD
Description
A rare and exciting opportunity to acquire a prime site in the heart of Clontarf, offered with full planning permission for the construction of a substantial, architecturally designed five bedroom, three-bathroom detached residence of true distinction. This exceptional home has been thoughtfully designed to combine elegant proportions with modern family living. Proposed Accommodation: Entrance porch leading to a welcoming hallway with Guest wc Spacious Family room, Home Office, Extensive kitchen/dining (45 sqm) designed as the heart of the home. Separate utility room Five generous double bedrooms - master suite with dressing room and en suite bathroom. 1 further en suite bedrooms, 3 further family bedrooms and main bathroom West-facing rear garden (11m wide and 6.3m deep), perfect for enjoying afternoon and evening sun This is a unique chance to create a bespoke home in one of Dublin`s most sought-after coastal locations, with excellent amenities, transport links, and lifestyle offerings right on your doorstep. Further details and site viewings are available strictly by appointment with Paul Menton and Melanie Brady. Notice Please note we have not tested any apparatus, fixtures, fittings, or services. Interested parties must undertake their own investigation into the working order of these items. All measurements are approximate and photographs provided for guidance only.
The local area
The local area
Sold properties in this area
Stay informed with market trends
Local schools and transport

Learn more about what this area has to offer.
School Name | Distance | Pupils | |||
|---|---|---|---|---|---|
| School Name | Belgrove Senior Boys' School | Distance | 630m | Pupils | 318 |
| School Name | Belgrove Infant Girls' School | Distance | 630m | Pupils | 203 |
| School Name | Central Remedial Clinic | Distance | 740m | Pupils | 83 |
School Name | Distance | Pupils | |||
|---|---|---|---|---|---|
| School Name | Belgrove Senior Girls School | Distance | 760m | Pupils | 408 |
| School Name | Belgrove Junior Boys School | Distance | 780m | Pupils | 310 |
| School Name | Howth Road National School | Distance | 1.1km | Pupils | 93 |
| School Name | Scoil Chiaráin Cbs | Distance | 1.2km | Pupils | 159 |
| School Name | Our Lady Of Consolation National School | Distance | 1.3km | Pupils | 308 |
| School Name | Greenlanes National School | Distance | 1.3km | Pupils | 281 |
| School Name | Killester Boys National School | Distance | 1.5km | Pupils | 292 |
School Name | Distance | Pupils | |||
|---|---|---|---|---|---|
| School Name | Holy Faith Secondary School | Distance | 860m | Pupils | 665 |
| School Name | Mount Temple Comprehensive School | Distance | 1.1km | Pupils | 899 |
| School Name | Ardscoil Ris | Distance | 1.4km | Pupils | 560 |
School Name | Distance | Pupils | |||
|---|---|---|---|---|---|
| School Name | St Paul's College | Distance | 1.5km | Pupils | 637 |
| School Name | Marino College | Distance | 1.5km | Pupils | 277 |
| School Name | St. Joseph's Secondary School | Distance | 1.6km | Pupils | 263 |
| School Name | St. Mary's Secondary School | Distance | 1.7km | Pupils | 319 |
| School Name | St. David's College | Distance | 2.0km | Pupils | 505 |
| School Name | Maryfield College | Distance | 2.2km | Pupils | 546 |
| School Name | Ringsend College | Distance | 2.5km | Pupils | 210 |
Type | Distance | Stop | Route | Destination | Provider | ||||||
|---|---|---|---|---|---|---|---|---|---|---|---|
| Type | Bus | Distance | 190m | Stop | Clontarf Castle | Route | 104 | Destination | Dcu Helix | Provider | Go-ahead Ireland |
| Type | Bus | Distance | 210m | Stop | Saint David's Court | Route | 104 | Destination | Clontarf Station | Provider | Go-ahead Ireland |
| Type | Bus | Distance | 240m | Stop | Clontarf Castle | Route | 130 | Destination | Castle Ave | Provider | Dublin Bus |
Type | Distance | Stop | Route | Destination | Provider | ||||||
|---|---|---|---|---|---|---|---|---|---|---|---|
| Type | Bus | Distance | 260m | Stop | Clontarf Cemetery | Route | 104 | Destination | Dcu Helix | Provider | Go-ahead Ireland |
| Type | Bus | Distance | 280m | Stop | Clontarf Cemetery | Route | 130 | Destination | Talbot Street | Provider | Dublin Bus |
| Type | Bus | Distance | 310m | Stop | Castle Avenue | Route | 104 | Destination | Dcu Helix | Provider | Go-ahead Ireland |
| Type | Bus | Distance | 400m | Stop | Castle Avenue | Route | 31n | Destination | Howth | Provider | Nitelink, Dublin Bus |
| Type | Bus | Distance | 420m | Stop | Castle Avenue | Route | 130 | Destination | Talbot Street | Provider | Dublin Bus |
| Type | Bus | Distance | 450m | Stop | Clontarf Baths | Route | 31n | Destination | Howth | Provider | Nitelink, Dublin Bus |
| Type | Bus | Distance | 450m | Stop | Clontarf Baths | Route | 130 | Destination | Castle Ave | Provider | Dublin Bus |
Your Mortgage and Insurance Tools
Check off the steps to purchase your new home
Use our Buying Checklist to guide you through the whole home-buying journey.
Budget calculator
Calculate how much you can borrow and what you'll need to save
Ad performance
- Date listed20/04/2026
- Views739
- Potential views if upgraded to an Advantage Ad1,205
Similar properties
€675,000
45 Addison Road (Pre '63 INVESTMENT), Fairview, Dublin 3, D03ET106 Bed · 5 Bath · End of Terrace€715,000
25 Bessborough Avenue, Dublin 3, North Strand, Dublin 3, D03PT636 Bed · 3 Bath · Terrace€745,000
49 Brookwood Park, Artane, Dublin 5, Co. Dublin, D05XR605 Bed · 2 Bath · Semi-D€775,000
40 Fairview Strand (Multi-Unit), Fairview, Dublin 3, D03K2265 Bed · 5 Bath · End of Terrace
Daft ID: 16549098