34 Saint Benedict's Gardens, North Circular Road, Dublin 7, D07AH72
€275,000
- Estimated Stamp Duty:€2,750
- Selling Type:By Private Treaty
About this property
Highlights
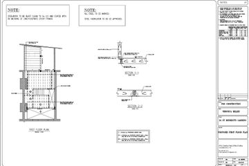
- Planning Permission Reference - 3121/23
- Excellent location
- Excellent transport links
Description
Dixon Residential Estate Agents is delighted to present No. 34 St Benedict’s Gardens to the Dublin 7 property market. This mid-terraced redbrick property represents an exceptional opportunity for buyers seeking a blank canvas to create their dream home in the heart of Dublin City. The house has been stripped back internally, offering a rare chance to design and finish the interiors to your own specification. Planning permission has already been granted for extensive renovations, including the development of a one-bedroom plus study layout. The approved architectural plans are attached to the property listing for your review. Nestled on a quiet and highly sought-after residential street, No. 34 enjoys an ideal balance of peaceful living and city convenience. The location offers easy access to the vibrant amenities of both Phibsborough and Drumcondra, including cafés, shops, bars, and restaurants—all within walking distance. **Key Location Features:** * Within 200 yards of the Mater Hospital. * Close proximity to Croke Park and Dublin Port. * Excellent public transport links, including Drumcondra train station just a 5-minute walk away, and numerous bus stops nearby servicing the entire city and Dublin Airport. We highly recommend a physical viewing of the property to fully appreciate its potential. A virtual walk-through of the architectures plans can also be arranged upon request. If you would like to learn more about 34 St Benedict’s Gardens or schedule a viewing, please do not hesitate to contact us. *** **Disclaimer:** While we have strived to ensure the accuracy of the information provided in this listing, please be aware that some details may have been provided by the vendor. Dixon Residential Estate Agents cannot accept responsibility for any errors or inaccuracies in our online advertising and advise prospective buyers to perform their own due diligence on any matters of concern.
The local area
The local area
Sold properties in this area
Stay informed with market trends
Local schools and transport

Learn more about what this area has to offer.
School Name | Distance | Pupils | |||
|---|---|---|---|---|---|
| School Name | Temple Street Hospital School | Distance | 310m | Pupils | 69 |
| School Name | Gardiner Street Primary School | Distance | 340m | Pupils | 313 |
| School Name | Lindsay Glasnevin | Distance | 530m | Pupils | 93 |
School Name | Distance | Pupils | |||
|---|---|---|---|---|---|
| School Name | Paradise Place Etns | Distance | 700m | Pupils | 237 |
| School Name | St Columba's Iona Road | Distance | 710m | Pupils | 371 |
| School Name | Gaelscoil Cholásite Mhuire | Distance | 760m | Pupils | 161 |
| School Name | O'Connell Primary School | Distance | 770m | Pupils | 155 |
| School Name | An Taonad Reamhscoil | Distance | 900m | Pupils | 93 |
| School Name | Rutland National School | Distance | 930m | Pupils | 153 |
| School Name | St Peter's National School | Distance | 960m | Pupils | 410 |
School Name | Distance | Pupils | |||
|---|---|---|---|---|---|
| School Name | Belvedere College S.j | Distance | 540m | Pupils | 1004 |
| School Name | O'Connell School | Distance | 800m | Pupils | 215 |
| School Name | Larkin Community College | Distance | 950m | Pupils | 414 |
School Name | Distance | Pupils | |||
|---|---|---|---|---|---|
| School Name | Mount Carmel Secondary School | Distance | 1.0km | Pupils | 398 |
| School Name | St Vincents Secondary School | Distance | 1.2km | Pupils | 409 |
| School Name | The Brunner | Distance | 1.4km | Pupils | 219 |
| School Name | St Josephs Secondary School | Distance | 1.6km | Pupils | 238 |
| School Name | Scoil Chaitríona | Distance | 1.6km | Pupils | 523 |
| School Name | Rosmini Community School | Distance | 1.7km | Pupils | 111 |
| School Name | Dominican College Griffith Avenue. | Distance | 1.8km | Pupils | 807 |
Type | Distance | Stop | Route | Destination | Provider | ||||||
|---|---|---|---|---|---|---|---|---|---|---|---|
| Type | Bus | Distance | 50m | Stop | Synnott Row | Route | 122 | Destination | Ashington | Provider | Dublin Bus |
| Type | Bus | Distance | 90m | Stop | Dorset Street Lower | Route | 19 | Destination | St Pappin's Road | Provider | Dublin Bus |
| Type | Bus | Distance | 90m | Stop | Dorset Street Lower | Route | 40 | Destination | Charlestown | Provider | Dublin Bus |
Type | Distance | Stop | Route | Destination | Provider | ||||||
|---|---|---|---|---|---|---|---|---|---|---|---|
| Type | Bus | Distance | 90m | Stop | Dorset Street Lower | Route | 41c | Destination | Swords Manor | Provider | Dublin Bus |
| Type | Bus | Distance | 90m | Stop | Dorset Street Lower | Route | 33 | Destination | Balbriggan | Provider | Dublin Bus |
| Type | Bus | Distance | 90m | Stop | Dorset Street Lower | Route | 900 | Destination | Marshes Sc | Provider | Matthews Coach Hire |
| Type | Bus | Distance | 90m | Stop | Dorset Street Lower | Route | 910 | Destination | Grange Rath | Provider | Matthews Coach Hire |
| Type | Bus | Distance | 90m | Stop | Dorset Street Lower | Route | 1 | Destination | Shanard Road | Provider | Dublin Bus |
| Type | Bus | Distance | 90m | Stop | Dorset Street Lower | Route | 111x | Destination | Clonmellon | Provider | Bus Éireann |
| Type | Bus | Distance | 90m | Stop | Dorset Street Lower | Route | 41d | Destination | Swords Bus.pk | Provider | Dublin Bus |
Your Mortgage and Insurance Tools
Check off the steps to purchase your new home
Use our Buying Checklist to guide you through the whole home-buying journey.
Budget calculator
Calculate how much you can borrow and what you'll need to save
BER Details
Statistics
- 06/11/2025Entered
- 564Property Views
- 919
Potential views if upgraded to a Daft Advantage Ad
Learn How
Similar properties
€249,000
Apartment 90, 20 Christchurch Place, Christchurch, Dublin 8, D08W7X41 Bed · 1 Bath · Apartment€249,000
Apartment 1 , Headfort Court, Dublin 1, D01K7181 Bed · 1 Bath · Apartment€249,000
42 Stapleton House, 33 Mountjoy Square Apartments, Dublin 1, Dublin 11 Bed · 1 Bath · Apartment€249,000
162 Church Road, East Wall, Dublin 3, D03Y9C42 Bed · 1 Bath · Apartment
€249,000
Apartment 8, Portland Lock, Portland Place, Dublin 1, D01KX631 Bed · 1 Bath · Apartment€250,000
Apartment 29, Liberty View, St. James Gate, Dublin 8, D08TP021 Bed · 1 Bath · Apartment€250,000
Apartment 62, Stapleton House, Dublin 1, D01W4211 Bed · 1 Bath · Apartment€250,000
Apartment 38, Bolton Square, Dominick Street Lower, Dublin 1, D01PD901 Bed · 1 Bath · Apartment€250,000
Apartment 1, Atrium Apartments, Island Street, Dublin 8, D08NX071 Bed · 1 Bath · Apartment€250,000
Apartment 2, Chesterfield, Riverpark Apartments, Conyngham Road, Dublin 8, D08W7321 Bed · 1 Bath · Apartment€260,000
Apartment 49 , The O'Casey, Gresham House, Dublin 1, D01VK331 Bed · 1 Bath · Apartment€265,000
215 Bachelors Walk, Dublin 1, Dublin 1, D01W2511 Bed · 1 Bath · Apartment
Daft ID: 16334953