House Type A, Royal Canal View, The Moorings, Royal Canal View, The Moorings, Ballymahon Road, Mullingar, Co. Westmeath
Price on Application
- Similar units available:4
About this property
Description
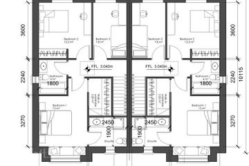
Type A are three bed semis measuring 108.4sq.m. designed with the modern homeowner in mind, offering exceptional energy efficiency and an A2 BER rating. Each home features innovative architecture, eco-friendly elements, and high-quality finishes, including air-to-water heat pumps, zoned heating systems, and superior insulation for optimal comfort. Type A: 6 Units Entrance Hall 2m x 5.51m (6'7" x 18'1"): Sitting Room 3.58m x 3.91m (11'9" x 12'10"): Kitchen/Dining Area 3.6m x 5.68m (11'10" x 18'8"): Utility Room 1.98m x 1.6m (6'6" x 5'3"): Guest WC 1.5m x 1.6m (4'11" x 5'3"): Storage 0.85m x 1.6m (2'9" x 5'3"): Landing 3.04m x 1.12m (10' x 3'8"): Bedroom One 3.27m x 3.13m (10'9" x 10'3"): En-Suite 2.45m x 1.9m (8' x 6'3"): Walk in Wardrobe 3.5sqm: Bedroom Two 3.6m x 3.4m (11'10" x 11'2"): Bedroom Three 2.18m x 3.6m (7'2" x 11'10"): Bathroom 1.8m x 2.24m (5'11" x 7'4"): Features Condron dry roof system High grade windows The latest acrylic render system Heaven set window sills Galvanised facia soffit/gutters ICF construction for high BER values Branded heat pumps with full back up service Higher grader footings than required High value insulations than required High end kitchens Latest Demand extractions system for internal Floor finishes to ground floor and upstairs bathrooms French doors High BTU radiators Room sizes and measurements are approximate and may vary slightly during construction.
The local area
The local area
Sold properties in this area
Stay informed with market trends
Local schools and transport
Learn more about what this area has to offer.
School Name | Distance | Pupils | |||
|---|---|---|---|---|---|
| School Name | Saplings Special School | Distance | 270m | Pupils | 36 |
| School Name | Mullingar Educate Together National School | Distance | 780m | Pupils | 379 |
| School Name | Gaelscoil An Mhuilinn | Distance | 1.2km | Pupils | 183 |
School Name | Distance | Pupils | |||
|---|---|---|---|---|---|
| School Name | St. Marys Primary School | Distance | 1.6km | Pupils | 426 |
| School Name | St Brigid's Special School | Distance | 1.9km | Pupils | 86 |
| School Name | All Saints National School Mullingar | Distance | 2.0km | Pupils | 87 |
| School Name | Presentation Senior School | Distance | 2.0km | Pupils | 307 |
| School Name | Presentation Junior School | Distance | 2.0km | Pupils | 284 |
| School Name | St Kenny National School | Distance | 2.1km | Pupils | 225 |
| School Name | Bellview National School | Distance | 2.8km | Pupils | 464 |
School Name | Distance | Pupils | |||
|---|---|---|---|---|---|
| School Name | Colaiste Mhuire, | Distance | 1.7km | Pupils | 835 |
| School Name | Loreto College | Distance | 1.9km | Pupils | 839 |
| School Name | Mullingar Community College | Distance | 2.3km | Pupils | 375 |
School Name | Distance | Pupils | |||
|---|---|---|---|---|---|
| School Name | St. Finian's College | Distance | 2.4km | Pupils | 877 |
| School Name | Wilson's Hospital School | Distance | 10.8km | Pupils | 430 |
| School Name | St Joseph's Secondary School | Distance | 12.5km | Pupils | 1125 |
| School Name | Columba College | Distance | 15.1km | Pupils | 297 |
| School Name | Castlepollard Community College | Distance | 17.8km | Pupils | 334 |
| School Name | Mercy Secondary School | Distance | 18.8km | Pupils | 720 |
| School Name | Ard Scoil Chiaráin Naofa | Distance | 25.6km | Pupils | 331 |
Type | Distance | Stop | Route | Destination | Provider | ||||||
|---|---|---|---|---|---|---|---|---|---|---|---|
| Type | Bus | Distance | 1.4km | Stop | Ashe Road | Route | 448 | Destination | Mullingar | Provider | Bus Éireann |
| Type | Bus | Distance | 1.4km | Stop | Ashe Road | Route | 448 | Destination | Mullingar | Provider | Bus Éireann |
| Type | Bus | Distance | 1.5km | Stop | Mullingar Station | Route | 818 | Destination | Castlepollard | Provider | Tfi Local Link Longford Westmeath Roscommon |
Type | Distance | Stop | Route | Destination | Provider | ||||||
|---|---|---|---|---|---|---|---|---|---|---|---|
| Type | Bus | Distance | 1.5km | Stop | Mullingar Station | Route | 816 | Destination | Longford | Provider | Tfi Local Link Longford Westmeath Roscommon |
| Type | Bus | Distance | 1.5km | Stop | Mullingar Station | Route | 167 | Destination | Dundalk | Provider | Bus Éireann |
| Type | Bus | Distance | 1.5km | Stop | Mullingar Station | Route | 819 | Destination | Belvedere House | Provider | Tfi Local Link Longford Westmeath Roscommon |
| Type | Bus | Distance | 1.5km | Stop | Mullingar Station | Route | 819 | Destination | Mullingar | Provider | Tfi Local Link Longford Westmeath Roscommon |
| Type | Bus | Distance | 1.5km | Stop | Mullingar Station | Route | 115 | Destination | Mullingar Via Summerhill | Provider | Bus Éireann |
| Type | Bus | Distance | 1.5km | Stop | Mullingar Station | Route | 115 | Destination | Dublin | Provider | Bus Éireann |
| Type | Bus | Distance | 1.5km | Stop | Mullingar Station | Route | 816 | Destination | Mullingar | Provider | Tfi Local Link Longford Westmeath Roscommon |
Your Mortgage and Insurance Tools
Check off the steps to purchase your new home
Use our Buying Checklist to guide you through the whole home-buying journey.
Budget calculator
Calculate how much you can borrow and what you'll need to save
BER Details
Statistics
- 30/07/2025Entered
- 1,439Property Views
Similar properties
€195,000
30 Springfield Cottages, Mullingar, Mullingar, Co. Westmeath, N91V6Y74 Bed · 1 Bath · Semi-D€195,000
13 Grange Park, Mullingar, Mullingar, Co. Westmeath, N91N9F23 Bed · 1 Bath · Semi-D€200,000
4 Fair View Terrace, Patrick Street, Mullingar, Co. Westmeath, N91E9K23 Bed · 1 Bath · Terrace€240,000
12 The Moorings, Market Point, Patrick Street, Mullingar, Co. Westmeath, N91E2733 Bed · 2 Bath · Apartment
€245,000
91 Abbeylands, Mullingar, Mullingar, Co. Westmeath, N91K2R63 Bed · 2 Bath · Semi-D€272,000
148 Ashefield, Mullingar, Mullingar, Co. Westmeath, N91E8R63 Bed · 3 Bath · Semi-D€275,000
3 Mary Street, Mullingar, Co. Westmeath, N91Y1K84 Bed · 2 Bath · Terrace€295,000
Austin Friars Street, Mullingar, Mullingar, Co. Westmeath, N91F2C03 Bed · 1 Bath · End of Terrace€295,000
14 New Ballinderry Cottages, Ballinderry Road, Mullingar, Co. Westmeath, N91R8X06 Bed · 2 Bath · Semi-D€295,000
216 Greenpark Meadows, Mullingar, Mullingar, Co. Westmeath, N91N2T33 Bed · 3 Bath · Detached€295,000
216 Greenpark Meadows, Mullingar, Co. Westmeath, N91N2T34 Bed · 3 Bath · Detached€295,000
Owel Cottage, Longford Road, Mullingar, Co. Westmeath, N91D9P64 Bed · 1 Bath · Bungalow
Daft ID: 122561298
