House Type C, Crann Arda, Castlecomer Road, Kilkenny
€450,000
- Selling Type:By Private Treaty
- Similar units available:1
About this property
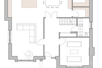
Description
Note: The property for sale is a "Development Site" upon which you can build your own home. Planning Permission has been granted for House Types A, B & C LOCATION Nestled among the original trees of and on the grounds of Newpark Lodge, Crann Arda is an exciting development of just 9 fully serviced executive sites and is an exclusive location for the home of your dreams. “Crann Arda” is beside Newpark Hotel and Leisure Centre, within 500m of Kilkenny College, less than 1km from Newpark Shopping Centre and within 1.6km of Kilkenny City centre. A stunning entrance off the Castlecomer Rd. will lead you into this private cul de sac. Newpark Lodge, formerly the private residence of the original owners of Newpark Hotel, will be retained and offered for sale separately. This is a superb residential location adjacent to all the amenities and virtues of Kilkenny city. The site represent an opportunity for the purchaser to develop a spacious family home with private garden’s in a premium location. DEVELOPMENT The infrastructure roads, footpaths, entrance and services have all been completed to provide 9 fully serviced sites upon which you can build your own home. Each site is fully self-contained with ornate wrought iron railings to the roads. Divisional boundaries shall be a mix of concrete block walls together with post and infill panel fencing. Full planning permission has been received for three different house types on the site. Any variation from these plans will require the permission of the planning authority and shall also require the permission of the Crann Arda management company. The estate will be managed by a Residents Management Company with the owners of each site and Newpark Lodge being shareholders. Site No. 1 0.18 Acres ‘A’ Type 145m2 135m2 278m2 (2992 Sq. ft.) Site No. 2 0.18 Acres ‘A’ Type 141m2 143m2 284m2 (3,057 sq. ft.) Site No. 3 0.35 Acres ‘A’ Type 141m2 143m2 284m2 (3,057 sq. ft.) Site No. 4 0.17 Acres ‘B’ Type 132m2 136m2 268m2 (2,885 sq. ft.) Site No. 5 0.22Acres ‘B’ Type 132m2 136m2 268m2 (2,885 sq. ft.) Site No. 6 0.29 Acres ‘B’ Type 132m2 136m2 268m2 (2,885 sq. ft.) Site No. 7 0.18 Acres ‘C’ Type 137m2 140m2 277m2 (2,982 sq. ft.) Site No. 8 0.22 Acres ‘C’ Type 137m2 140m2 277m2 (2,982 sq. ft.) Site No. 9 0.21 Acres ‘C’ Type 137m2 140m2 277m2 (2,982 sq. ft.) Title: Freehold Developers: Cognito Developments Kilkenny Limited Solicitors: Crowley, Millar SolicitorsGeorgeses Dock, IFSC, Dublin 1 Architects: Brian Dunlop Architects, 15 Patrick Street, Kilkenny Construction: Each site will be developed in accordance with the planning permission and sales contract conditions
The local area
The local area
Sold properties in this area
Stay informed with market trends
Local schools and transport
Learn more about what this area has to offer.
School Name | Distance | Pupils | |||
|---|---|---|---|---|---|
| School Name | Kilkenny National School | Distance | 500m | Pupils | 208 |
| School Name | St. John's National School | Distance | 700m | Pupils | 0 |
| School Name | St John's Senior School Kilkenny | Distance | 750m | Pupils | 216 |
School Name | Distance | Pupils | |||
|---|---|---|---|---|---|
| School Name | St. Canice's Co-ed. National School | Distance | 820m | Pupils | 645 |
| School Name | The Lake Junior School | Distance | 1.0km | Pupils | 223 |
| School Name | Mother Of Fair Love Spec School | Distance | 1.3km | Pupils | 77 |
| School Name | Presentation Primary School | Distance | 1.4km | Pupils | 420 |
| School Name | Cbs Primary Kilkenny | Distance | 1.5km | Pupils | 255 |
| School Name | St John Of God Kilkenny | Distance | 1.9km | Pupils | 331 |
| School Name | St Patrick's De La Salle Boys National School | Distance | 2.0km | Pupils | 341 |
School Name | Distance | Pupils | |||
|---|---|---|---|---|---|
| School Name | Kilkenny College | Distance | 550m | Pupils | 919 |
| School Name | Loreto Secondary School | Distance | 830m | Pupils | 994 |
| School Name | C.b.s. Kilkenny | Distance | 1.2km | Pupils | 836 |
School Name | Distance | Pupils | |||
|---|---|---|---|---|---|
| School Name | Coláiste Pobail Osraí | Distance | 1.6km | Pupils | 222 |
| School Name | City Vocational School | Distance | 1.7km | Pupils | 311 |
| School Name | St Kieran's College | Distance | 1.8km | Pupils | 802 |
| School Name | Presentation Secondary School | Distance | 2.7km | Pupils | 902 |
| School Name | Callan Cbs | Distance | 15.6km | Pupils | 267 |
| School Name | St. Brigid's College | Distance | 15.8km | Pupils | 244 |
| School Name | Castlecomer Community School | Distance | 15.8km | Pupils | 633 |
Type | Distance | Stop | Route | Destination | Provider | ||||||
|---|---|---|---|---|---|---|---|---|---|---|---|
| Type | Bus | Distance | 130m | Stop | Kilkenny College | Route | Kk1 | Destination | Glenbawn | Provider | City Direct |
| Type | Bus | Distance | 130m | Stop | Kilkenny College | Route | Kk1 | Destination | Danville Business Park | Provider | City Direct |
| Type | Bus | Distance | 290m | Stop | Newpark Lower | Route | Kk1 | Destination | Glenbawn | Provider | City Direct |
Type | Distance | Stop | Route | Destination | Provider | ||||||
|---|---|---|---|---|---|---|---|---|---|---|---|
| Type | Bus | Distance | 330m | Stop | Newpark Lower | Route | Kk1 | Destination | Danville Business Park | Provider | City Direct |
| Type | Bus | Distance | 410m | Stop | Kilkenny College | Route | 897 | Destination | Moneenroe | Provider | Tfi Local Link Carlow Kilkenny Wicklow |
| Type | Bus | Distance | 410m | Stop | Kilkenny College | Route | 897 | Destination | Athy | Provider | Tfi Local Link Carlow Kilkenny Wicklow |
| Type | Bus | Distance | 650m | Stop | Green Street | Route | Iw01 | Destination | Carlow Institute | Provider | Dunnes Coaches |
| Type | Bus | Distance | 660m | Stop | Banim Terrace | Route | 838 | Destination | Mountmellick, Stop 131561 | Provider | Slieve Bloom Coach Tours |
| Type | Bus | Distance | 660m | Stop | Banim Terrace | Route | 838 | Destination | Portlaoise Railway Station | Provider | Slieve Bloom Coach Tours |
| Type | Bus | Distance | 670m | Stop | Green Street | Route | Iw01 | Destination | Loughboy Shopping Centre | Provider | Dunnes Coaches |
Your Mortgage and Insurance Tools
Check off the steps to purchase your new home
Use our Buying Checklist to guide you through the whole home-buying journey.
Budget calculator
Calculate how much you can borrow and what you'll need to save
BER Details
Ad performance
- Date listed19/08/2024
- Views5,165
- Potential views if upgraded to an Advantage Ad8,419
Similar properties
€420,000
1 Greenfields Road, Kilkenny, Kilkenny, Co. Kilkenny, R95T6CK3 Bed · 1 Bath · Semi-D€425,000
64 The Weir, Castlecomer Road, Kilkenny, Co. Kilkenny, R95K2F94 Bed · 3 Bath · Semi-D€425,000
58 Glendine Heights, Kilkenny, Kilkenny, Co. Kilkenny, R95H1RR3 Bed · 3 Bath · Semi-D€430,000
14 Springfields, Waterford Road, Kilkenny, Co. Kilkenny, R95D9CT4 Bed · 2 Bath · Detached
€450,000
House Type B, Crann Arda, Castlecomer Road, KilkennySite€450,000
House Type A, Crann Arda, Castlecomer Road, Kilkenny, Co. Kilkenny, R95P97XSite€460,000
2 The Crescent, Cashel Lawn, Cashel Downs, Kilkenny, Co. Kilkenny, R95HYA94 Bed · 2 Bath · Detached€460,000
58 The Orchard, Old Golf Links Road, Kilkenny, Co. Kilkenny, R95E8F54 Bed · 3 Bath · Detached€475,000
37 Beechlawns, Johnswell Road, Kilkenny, R95X4W05 Bed · 3 Bath · Detached€490,000
Ashgrove, 1 Dunglen Court, Kilkenny, Co. Kilkenny, R95AVP85 Bed · 2 Bath · Detached€520,000
11 Castlehill, Bennettsbridge Road, Kilkenny, Co. Kilkenny, R95V4Y94 Bed · 4 Bath · End of Terrace€520,000
35 Glenbawn, Castlecomer Road, Kilkenny, Co. Kilkenny, R95P8C34 Bed · 3 Bath · Detached
Daft ID: 119898650
